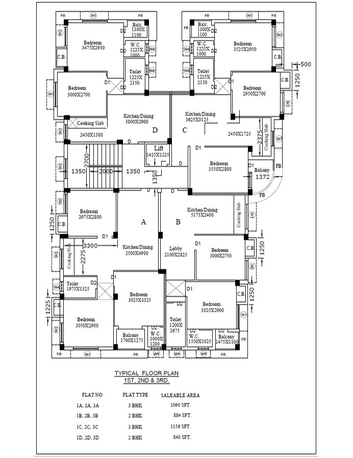
Binayak Purple
Nayabad Mini Bus Stand Ready To move 2 BHK,840 sq/ft 3 BHK, 1100 sq/ft and 1156 sq/ft Rate: 4000 per sq/ft 4 lac Car Parking
Design By Zeon Technology Services