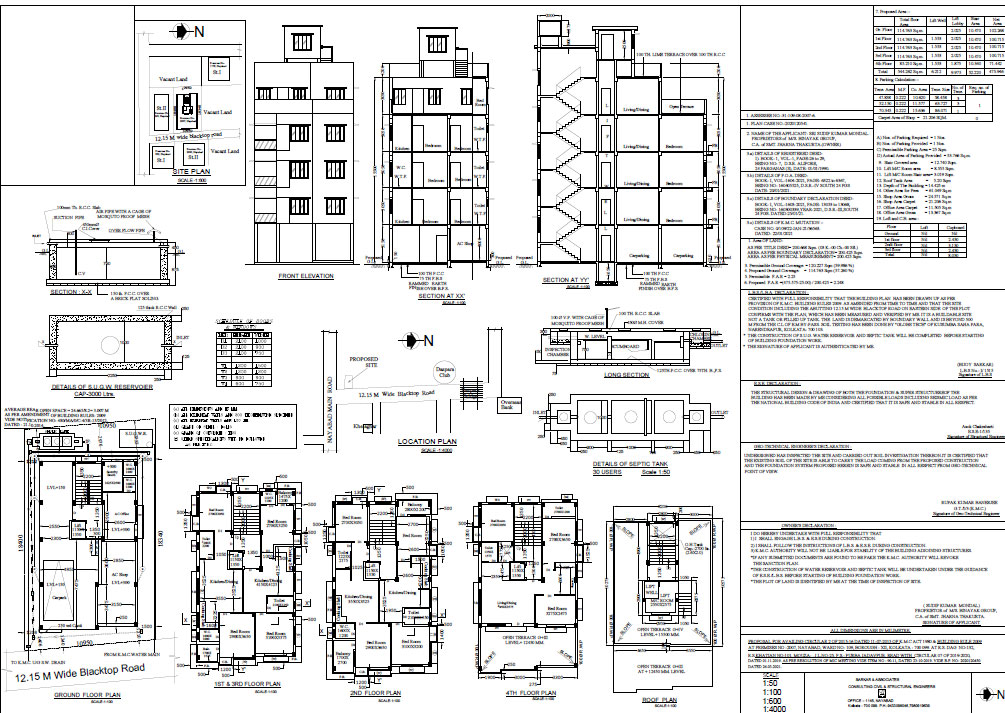
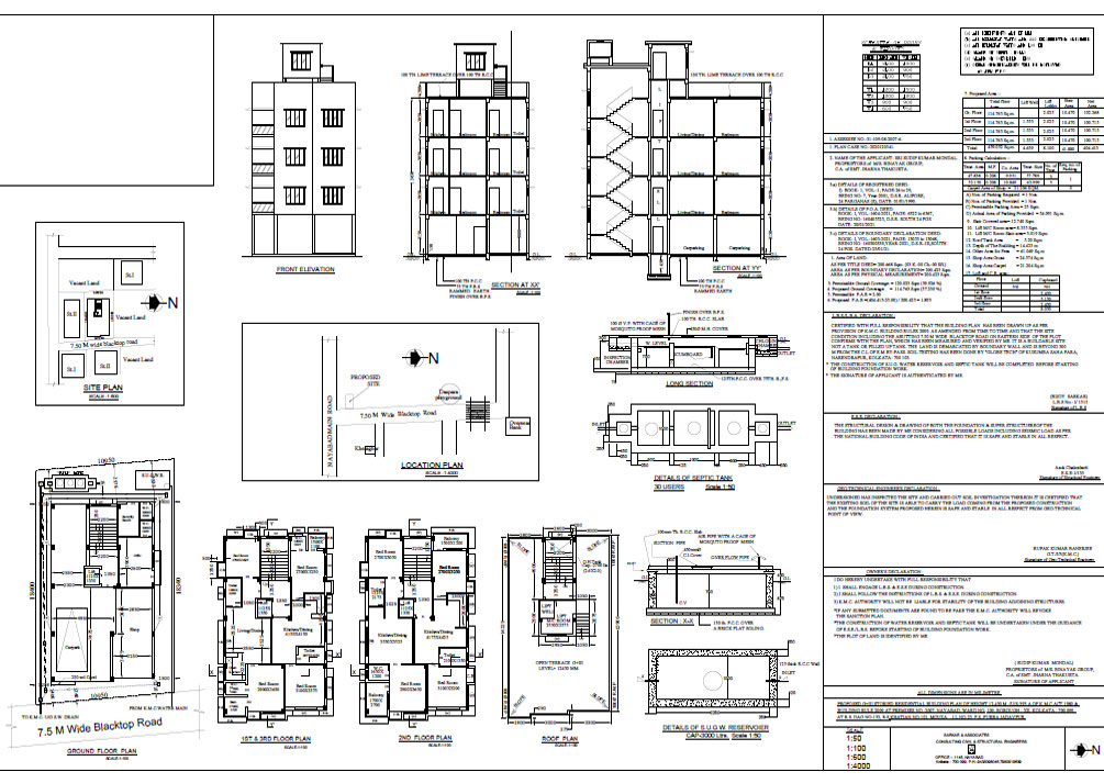
Binayak Astra 1
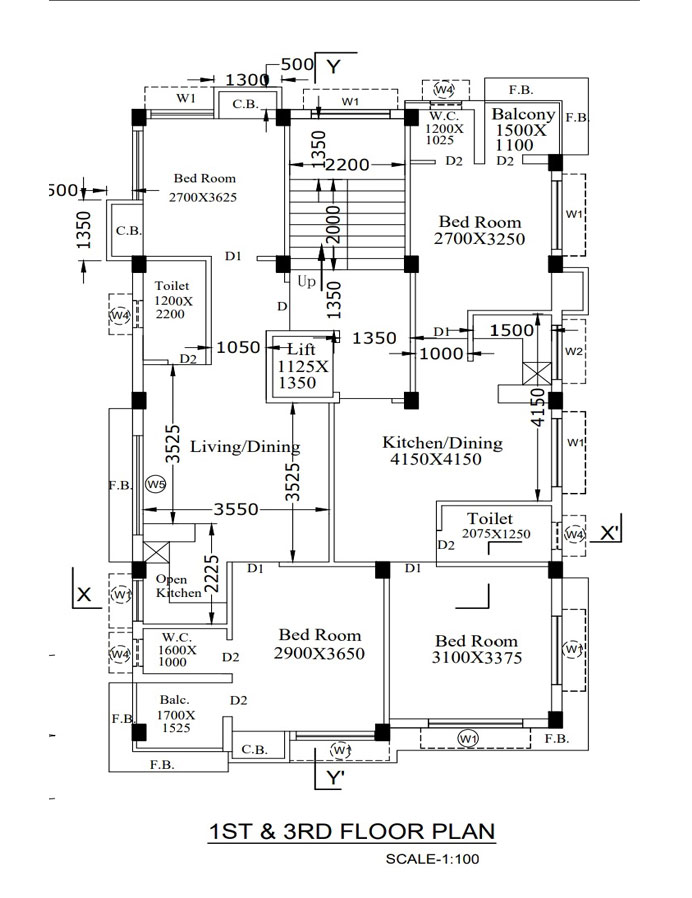
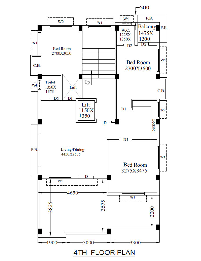
2007 Nayabad, Kolkata 700099 Astra 1 - 1700 sq/ft - 4BHK Rate: 75,00,000/-
Design By Zeon Technology Services